REQUEST A TOUR If you would like to see this home without being there in person, select the "Virtual Tour" option and your agent will contact you to discuss available opportunities.
In-PersonVirtual Tour

$ 625,000
Est. payment /mo
New
24 Brennan AVE Barrie, ON L4N 3X3
3 Beds
1 Bath
UPDATED:
Key Details
Property Type Single Family Home, Condo
Sub Type Detached
Listing Status Active
Purchase Type For Sale
Approx. Sqft 1100-1500
Subdivision South Shore
MLS Listing ID S12665924
Style Bungalow
Bedrooms 3
Annual Tax Amount $4,207
Tax Year 2025
Property Sub-Type Detached
Property Description
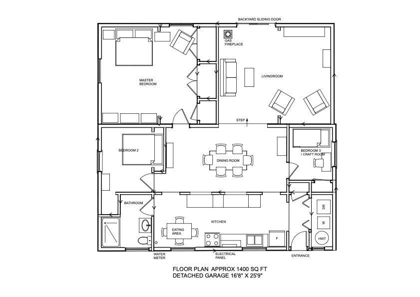
Builders , 1st time home buyers, developers , so many opportunities for this 50' property that fronts 2 roads in Barrie's highly desirable Minet's point neighbourhood. Inside, you'll find a spacious approx 1400 Sq Ft , 3 bedroom home and inviting layout perfect for family living. The large dining area is ideal for gatherings, while the eat-in kitchen offers convenience and comfort. One bedroom is currently used as a craft room, showcasing the home's versatility. The bathroom features a walk-in shower, and the primary bedroom boasts extra-large closets and storage area. Parking for four cars is available, and a large backyard provides a tranquil outdoor space to enjoy the summer breezes off the lake. Detached Shop/Garage and freestanding tool shed. Don't miss this exceptional opportunity
Location
Province ON
County Simcoe
Area Simcoe
Body of Water Kempenfelt Bay
Rooms
Basement Crawl Space
Kitchen 1
Interior
Interior Features None
Cooling None
Fireplaces Number 1
Fireplaces Type Natural Gas, Freestanding
Inclusions Fridge , Stove , Washer /Dryer
Exterior
Parking Features Detached
Pool None
Roof Type Metal
Total Parking Spaces 4
Building
Foundation Concrete Block
Lited by RIGHT AT HOME REALTY

GET MORE INFORMATION
QUICK SEARCH





